FS/FEED(Feasibillity Study)
【ライフサイエンス_FS】
基本構想や生産計画の策定段階からお客さまと共に検証を実施

計画コンセプトの構築(動画プレゼンでお客さまとの共有)
業務内容
ご計画内容について、分析・検討し、成果物を作成
- STEP1
-
お客さまからの
データ受領
機能性・拡張性を有する
医薬品工場の構築
医薬品GMPなど
各種法規への適合
- STEP2
-
CXOによる
分析・検討
いつ
どこで
なにを
どれだけ
どのように
いくらで
施設規模の検討
機器仕様構築
機器配置とリストの策定
各種法規レビューの実施
リスク分析と対策の策定
- STEP3
-
検討結果の提示
(CXO→お客さま)

-
マスタースケジュール案

-
敷地利用計画/建築計画/建築設備計画

-
生産基本計画

-
生産設備計画

-
物流設備計画

-
概算予算検討書
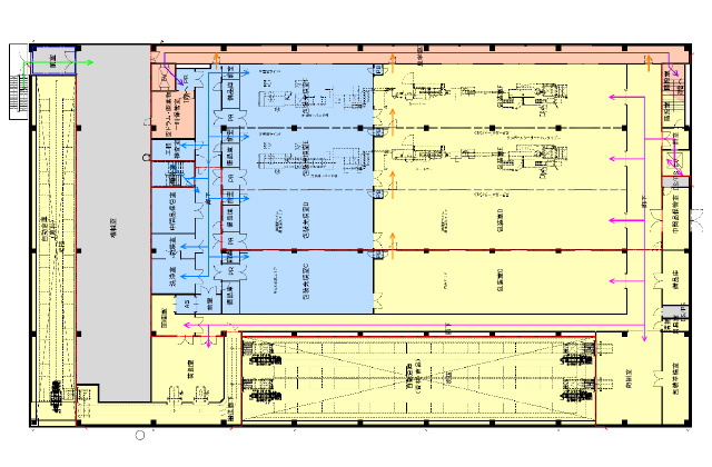
平面案と機器配置、人動線

空調ダクトフロー

全体スケジュール

完成予想CG



